Fast Track

Fast-Forward to Your Dream Home

We are excited to introduce FastTrack by Vikram Homes, a service designed to help you move into your dream home faster than you thought possible.
If you qualify, our dedicated building team will be ready to start construction on your block of land within just 8 weeks* of your initial deposit. We’ll then complete your home in approximately 26 weeks*, ensuring you get the best build quality at an affordable price.

Explore Our FastTrack Programme

Facade Options

Aster 170

Area Schedule
Garage
31.32 Sq.m
Outside Area
8.65 Sq.m
Ground Floor
130.33 Sq.m
Total Area
170.03 Sq.m

Facade Options

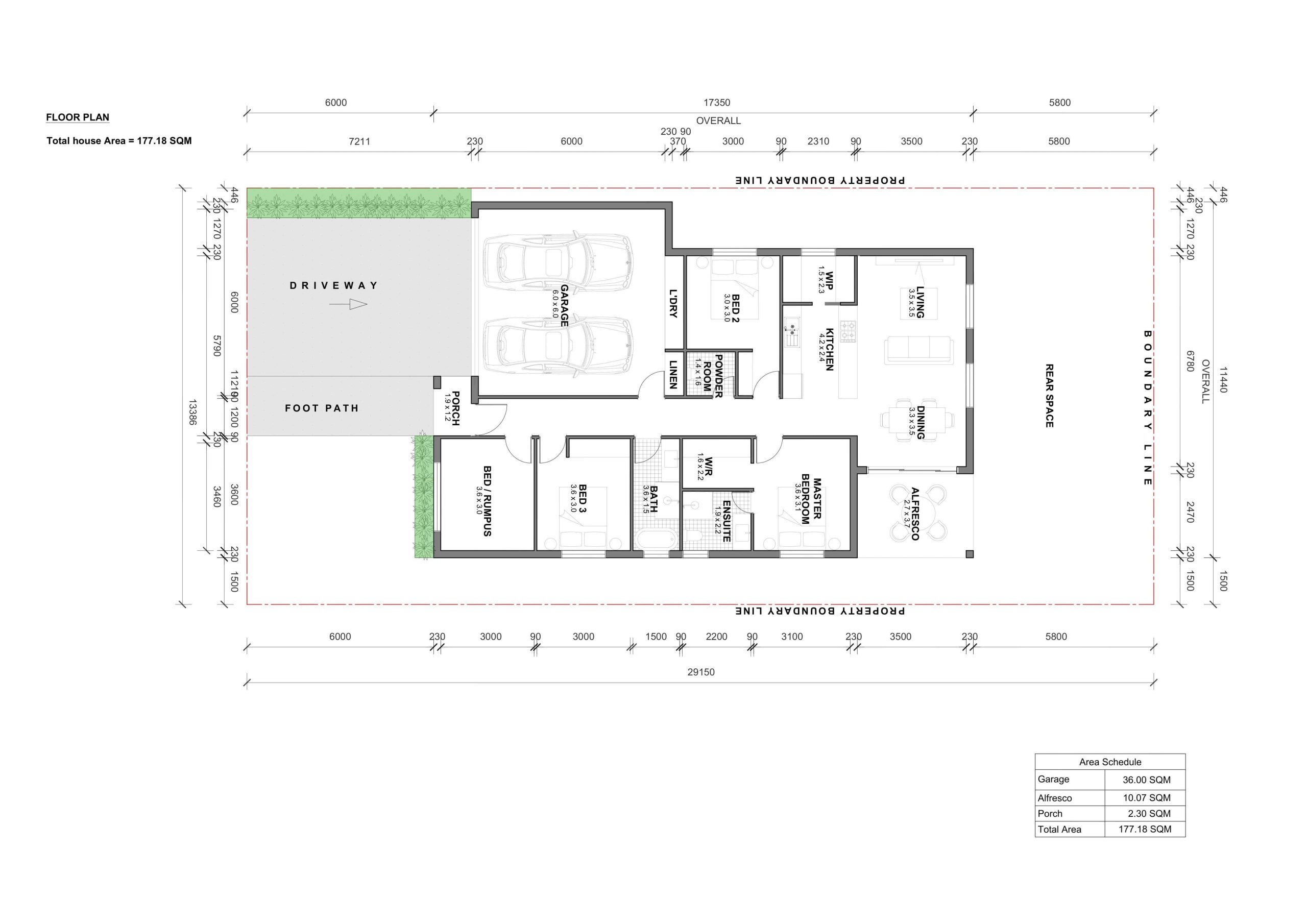
Basil 177

Area Schedule
Garage
36.00 SQM
Alfresco
10.07 SQM
Porch
2.30 SQM
Total Area
177.18 SQM

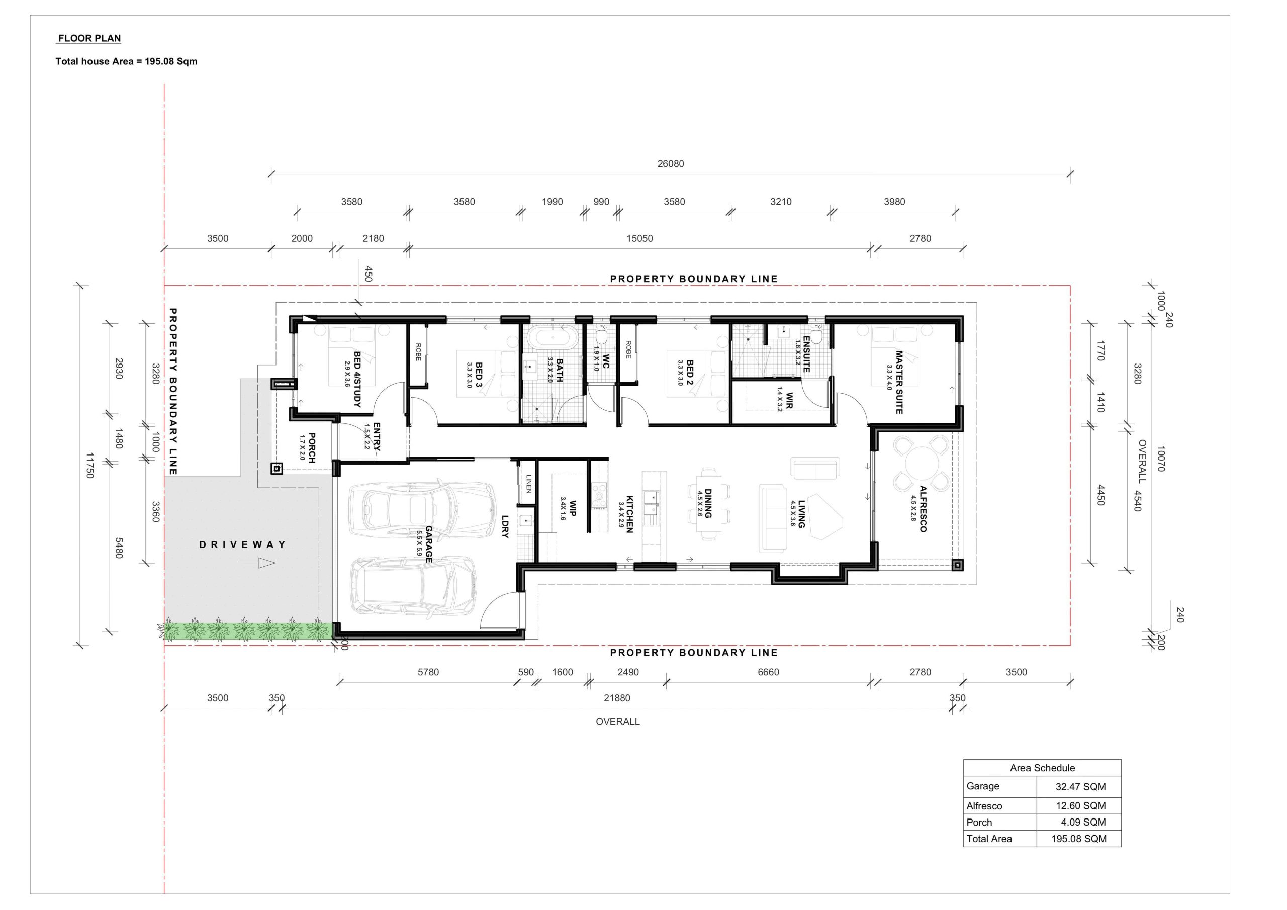
Facade Options

Blue Bell 195

Area Schedule
Garage
32.47 SQM
Alfresco
12.60 SQM
Porch
4.09 SQM
Total Area
195.08 SQM

Facade Options

Daisy 211

Area Schedule
Garage
33.97 Sq.m
Alfresco
13.82 Sq.m
Porch
4.40 Sq.m
Total Area
211.28 Sq.m

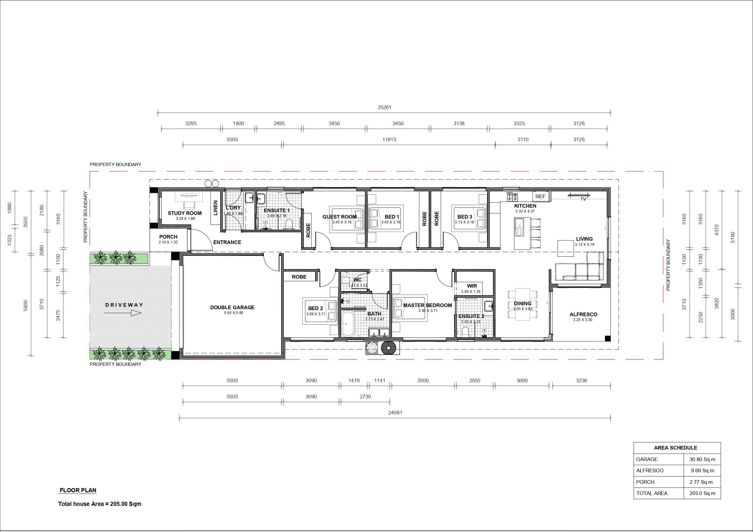
Facade Options

Jasmine 217

Area Schedule
Garage
30.80 Sq.m
Alfresco
9.69 Sq.m
Porch
2.77 Sq.m
Total Area
205.0 Sq.m

Facade Options

Lily 235

Area Schedule
Garage
31.18 Sq.m
Alfresco
12.62 Sq.m
Porch
2.24 Sq.m
Total Area
232.09 Sq.m

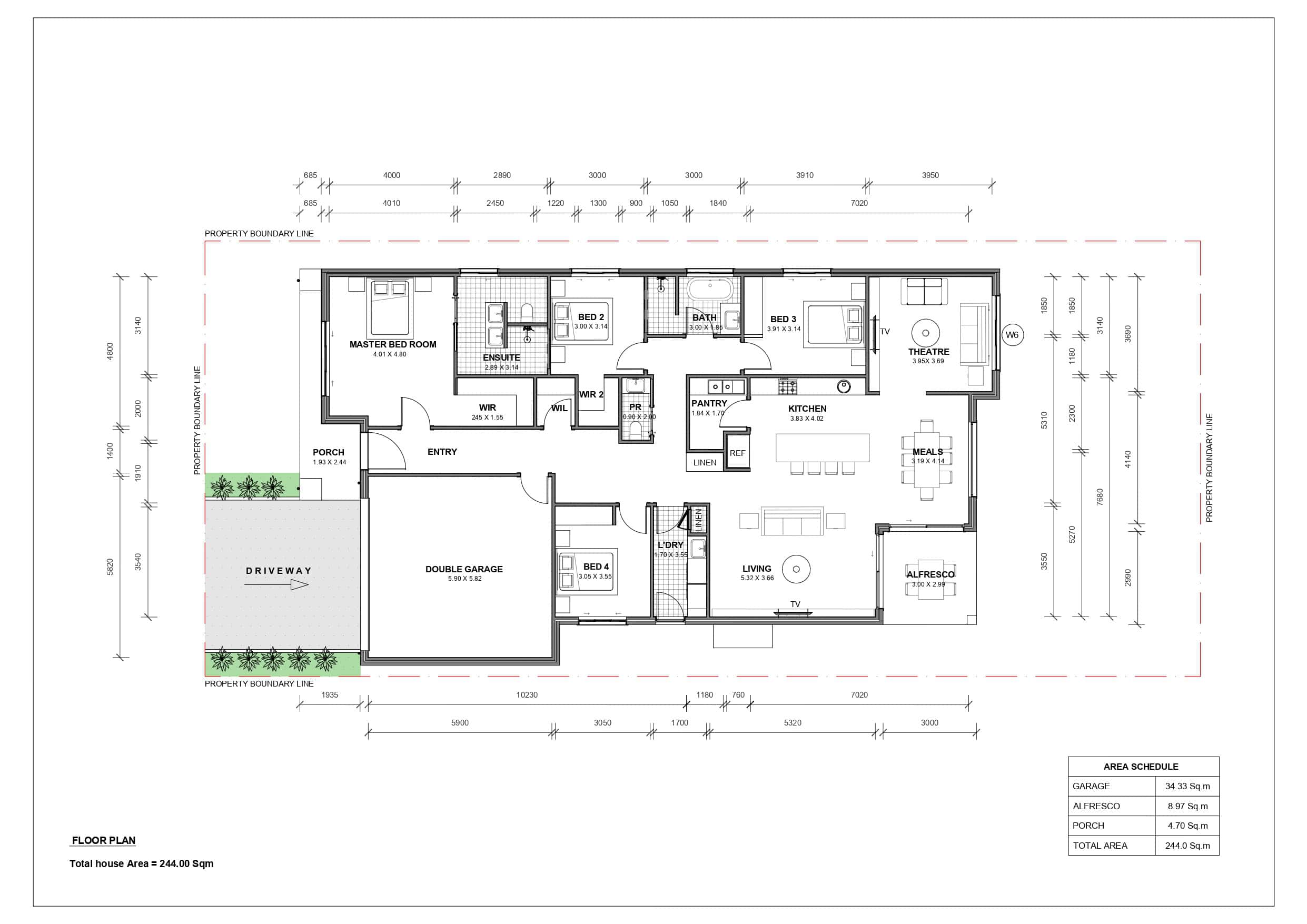
Facade Options

Tulip 245

Area Schedule
Garage
34.33 Sq.m
Alfresco
8.97 Sq.m
Porch
4.70 Sq.m
Total Area
244.0 Sq.m

Here’s how you can qualify

There are 3 easy steps to ensure we can fast track your new home.

1. Select from our range of Designer homes

All standard Designer Vikram Homes and their home design options are available with FastTrack. The only thing excluded are home structural variations. By keeping the process simple, it allows you to skip the line and start sooner.

2. Your land is ready to go

Your land must be titled in an approved Queensland area. To move fast, we also need to be able to fix the site cost of your land. Speak to your New Home Advisor for further details included participating build areas.

3. Make your home selections with our Fast Track brochure

To make your new home selections easy, fast and affordable, simply choose from our most popular home choices within the FastTrack selections brochure to personalise your new home finishes, look and style.

Skip the line

The Vikram Homes FastTrack program is designed to make building a new home faster and more affordable. We can help you save thousands of dollars and deliver your dream home or investment sooner than you might have thought possible.

  • Speed – Get into your new home faster
  • Savings – Save thousands on your new home
  • Certainty – Have peace of mind, knowing about your new home’s journey
Scroll to Top